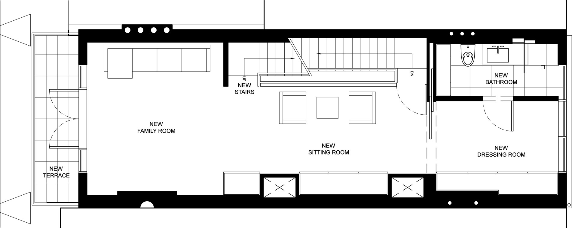
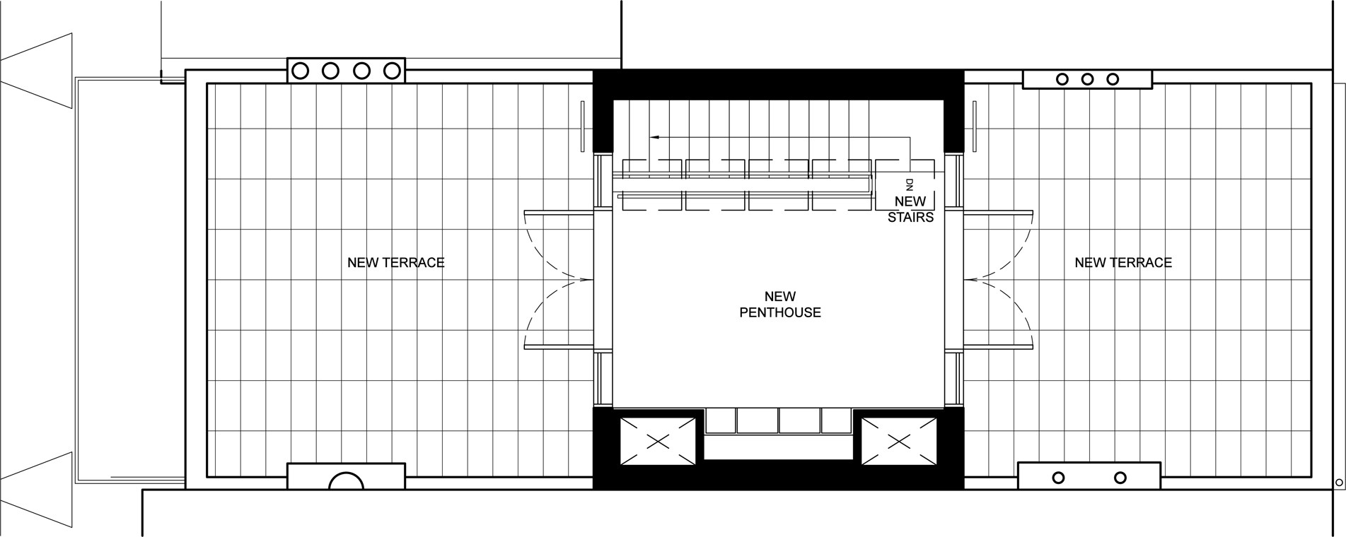
Upper East Side Addition This project is an addition of a new one story and new penthouse to an existing five-story brownstone. The design shows a juxtaposition of a modern expression to a traditional residential building. The townhouse is a single-family residence, 6,000 square feet with 6 bedrooms and 8 bathrooms.
Architecture/Design: Sandra Aranguren-Langston with Jorge Otero-Pailos




