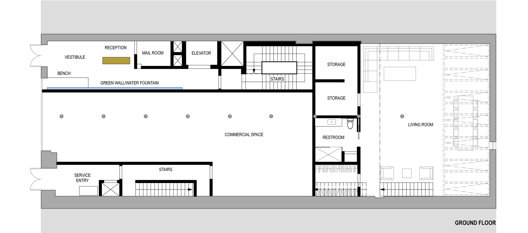
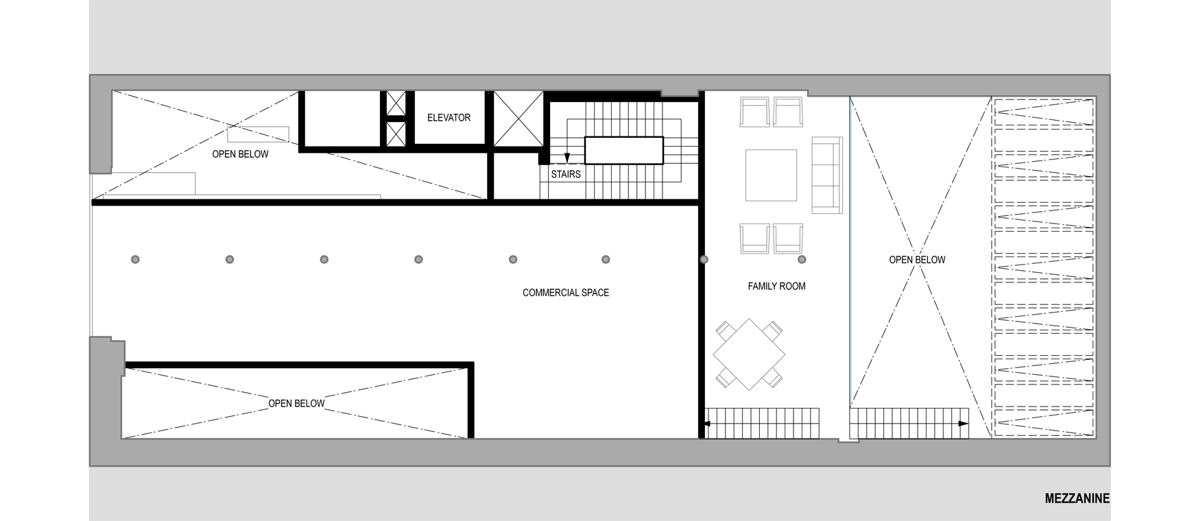
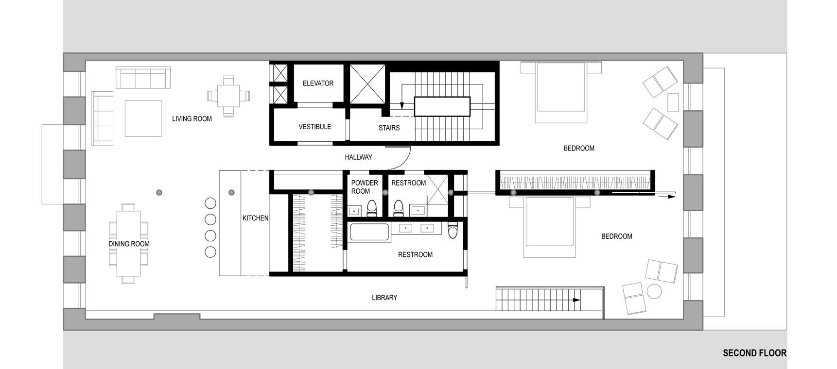
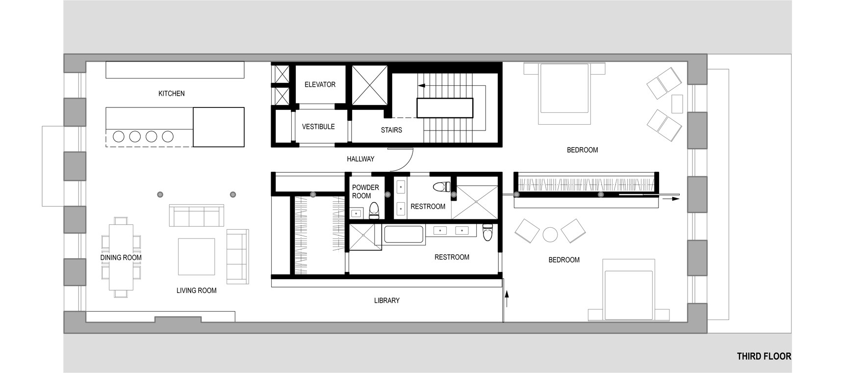
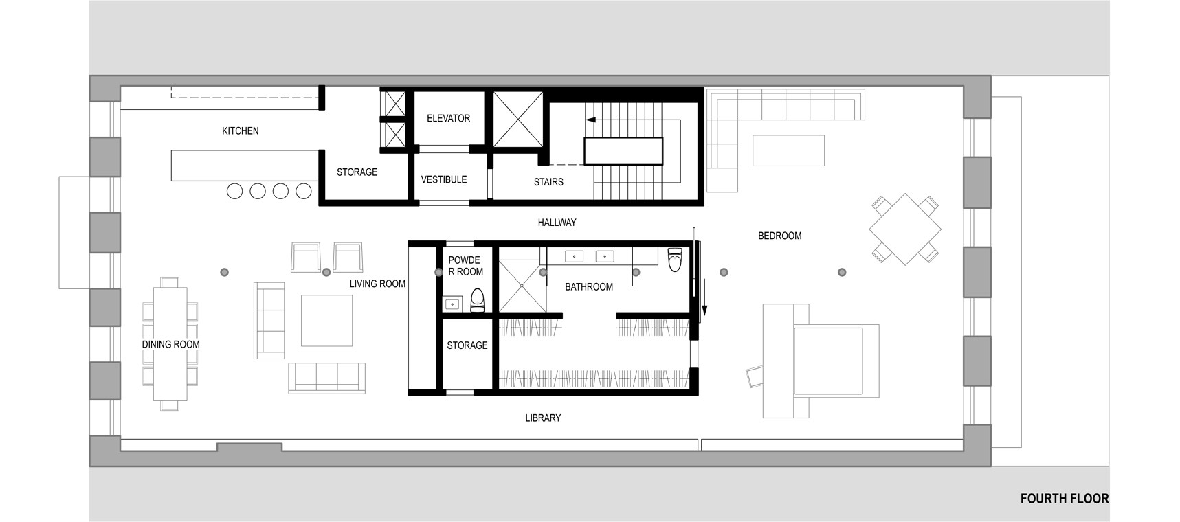
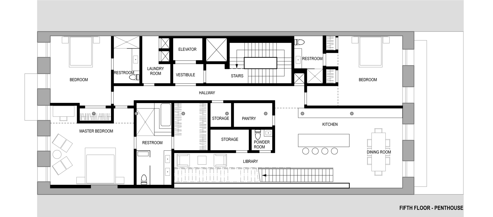
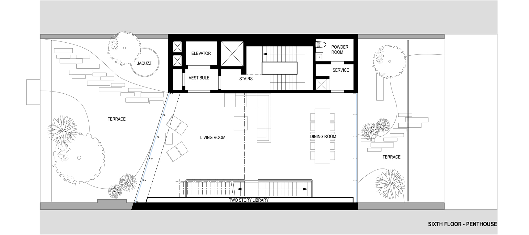
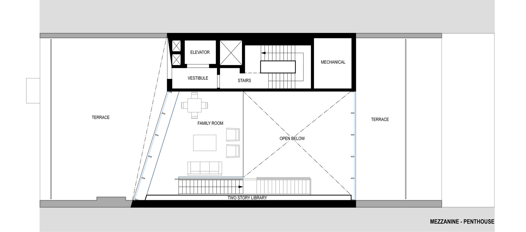
Tribeca Multi-Use Building This Landmarked building includes a two-story commercial space and three, high-end duplex apartments. The design combines the gut renovation of the existing five-story building and the addition of a duplex penthouse, with 6,240 square feet of commercial space and 19,680 square feet of residential use.
Architecture/Design/Furnishings: Sandra Aranguren-Langston with Jorge Otero-Pailos












